Casa full elettrico

Normativa Termotecnica, Impianti di riscaldamento, Legge 10/91, DLgs 192/05, ecc.

Moderatore: Edilclima

Rispondi
Shoaun
Messaggi: 3
Iscritto il: lun dic 04, 2023 16:15

Casa full elettrico

Messaggio da Shoaun »

Buongiorno,

Sono nuovo a questo mondo, ho comprato casa di nuova costruzione (zona climatica C; GG 1.202; dati che ancora devo capire davvero come interpretare) e vorrei, come da titolo, orientarla sin da subito al solo Elettrico, stando quindi alla larga dalle compagnia del Gas.

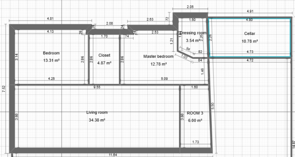
La casa si estende su un'unica superficie di circa 90mq, con un open-space, una piccola camera matrimoniale con un'accenno di cabina armadio dalla quale si accede ad un bagno lavanderia, una cameretta ed un bagno "principale".

Ho già qualche preventivo per quando riguarda il riscaldamento, che vorrebbe essere un radiante a pavimento, indeciso tra con massetto o a secco, prezzo a parte, il quale è più o meno simile, inizialmente ero orientato per un sistema a soffitto, ma ha dei costi un po' eccessivi per quello che posso fare; protendo, alla fine, più per l'impianto a secco, anche per la rapidità di utilizzo.

Sono particolarmente in crisi per quando riguarda il raffrescamento, potrei utilizzare la pompa di calore per alimentare dei banalissimi split posizionati nei vari ambienti, ma per strizzare l'occhio alla parte estetica, iniziavo a prendere in considerazione un impianto canalizzato in controsoffitto, ma non ho ancora ben capito le vere differenze di costo tra le due opzioni; questo in realtà è uno dei miei problemi fondamentali, poiché non ho ben capito come dovrei orientarmi a questo punto per la ricerca della pompa di calore, quale tecnologia mi converrebbe usare (quanti Kw; che COP andare a ricercare; che tecnologia utilizzare, mi pare di aver capito che le scelte "migliori" sono tra aria-acqua o gas espanso :?: ce ne sono altre da tenere in considerazione? qualcuna lavora meglio con una ipotesi di climatizzazione, qualcuna con l'altra?)

A questo si aggiunge un garage sotto l'appartamento, che vorrei utilizzare come cosiddetta "man-cave" :lol: per allestirci una palestra, una zona con un proiettore e via dicendo, che avrebbe bisogno di un minimo controllo climatico, in questo caso, una banalissimi split andrebbe pure bene immagino, ma sarebbe compatibile con le varie ipotesi di soluzioni? penso di sì, ma magari sbaglio e chiedo ugualmente

A tutto questo si aggiungono altri due miei quesiti: 1) per quanto riguarda l'ACS, come dovrei orientarmi, devo prendere solo un boiler per la produzione di ACS o a seconda della pompa di calore serve altro?
2) In linea generale, chiedo anche come funziona la centrale termica di una pompa di calore, da cosa dovrebbe essere costituita per quello che dovrebbe essere il mio progetto.

Sono varie domande, molti dubbi, probabilmente tutto molto confuso e magari avrò scritto anche qualche castroneria, cercherò di consigliarmi con un tecnico locale che si occupa di queste cose, ma vorrei arrivare un minimo preparato per non limitarmi a guardarlo ed annuire mentre cercherà di dirmi la sua, magari avendo la possibilità di avanzare proposte che potrei valutare con lui stesso.

Ringrazio tutti a priori, se dovesse essere necessaria una qualsiasi aggiunta e/o chiarimento riguardo ai miei dubbi o alla situazione, cercherò di aggiornare il tutto il prima possibile
Allegati
Circa la planimetria della casa
Circa la planimetria della casa
Screenshot 2023-09-17 223200.png (250.46 KiB) Visto 3073 volte
arkanoid
Messaggi: 5138
Iscritto il: ven ago 31, 2007 08:51

Re: Casa full elettrico

Messaggio da arkanoid »

Zona C probabilmente sei lontano, ma se ti interessa ti faccio preparare comunque un'offerta. Non credo saremmo competitivi a livello costi di trasferta rispetto a tecnici locali.
redigere redigere redigere
Shoaun
Messaggi: 3
Iscritto il: lun dic 04, 2023 16:15

Re: Casa full elettrico

Messaggio da Shoaun »

Sarebbe interessante un preventivo, lo metto in comparazione con i locali, ma almeno partirei già da un'idea di qualcuno che ne sa.

In generale le mie domande rimangono aperte, anche per avere idee e pareri per sapere se le mie idee sono sensate
Esa
Messaggi: 4776
Iscritto il: sab dic 03, 2011 22:53

Re: Casa full elettrico

Messaggio da Esa »

anche per avere idee e pareri
Io ho pareri diversi dalla maggioranza, come tutti sanno.
arkanoid
Messaggi: 5138
Iscritto il: ven ago 31, 2007 08:51

Re: Casa full elettrico

Messaggio da arkanoid »

in che zona sei?
redigere redigere redigere
Shoaun
Messaggi: 3
Iscritto il: lun dic 04, 2023 16:15

Re: Casa full elettrico

Messaggio da Shoaun »

Esa ha scritto: mar dic 05, 2023 22:28
anche per avere idee e pareri
Io ho pareri diversi dalla maggioranza, come tutti sanno.
Sempre aperto a qualsiasi tipo di parere!
arkanoid ha scritto: mer dic 06, 2023 08:21 in che zona sei?
Gravina di Catania
Avatar utente
ilverga
Messaggi: 2286
Iscritto il: gio ott 05, 2006 17:42
Località: prov. MI

Re: Casa full elettrico

Messaggio da ilverga »

Shoaun ha scritto: mer dic 06, 2023 14:49
Gravina di Catania
Pota, l’è mìa tròp visì :mrgreen: :mrgreen:
Non hai diritto alla tua opinione. Hai diritto alla tua opinione informata. Nessuno ha il diritto di essere ignorante
arkanoid
Messaggi: 5138
Iscritto il: ven ago 31, 2007 08:51

Re: Casa full elettrico

Messaggio da arkanoid »

Shoaun ha scritto: mer dic 06, 2023 14:49 Gravina di Catania
Purtroppo non riusciamo, troppo lontano. Peccato perchè sono sempre cose interessanti. Vediamo se qui sul forum c'è qualcuno che ti possa raggiungere in macchina
redigere redigere redigere
Esa
Messaggi: 4776
Iscritto il: sab dic 03, 2011 22:53

Re: Casa full elettrico

Messaggio da Esa »

Sempre aperto a qualsiasi tipo di parere!
Impianto
FV con sistema di recupero (prelievo automatico dell'esubero, SENZA BATTERIE), split + pannelli elettrici a pavimento, ACS con PdC e resistenza, con deviatore E/I su aria (collegamento all'esterno in inverno e all'interno in estate).
Funzionamento
a) Inverno selezione tra ECO (split -> pannelli e COMFORT ->solo pannelli)
Sequenza recupero (modulante con SRC):
- resistenza ACS, pannelli bagni, pannelli soggiorno, pannelli notte, split
b) Estate
Sequenza recupero (modulante con SRC):
- resistenza ACS, split
Griti
Messaggi: 6
Iscritto il: lun nov 13, 2023 11:10

Re: Casa full elettrico

Messaggio da Griti »

A Gravina l'impianto a pavimento è inutile, il tuo problema è il caldo. Mi concentrerei su come risolvere questo problema, magari con un sistema canalizzato. Punta a mettere una sola PDC che ti servirà il clima e un boiler per ACS (meglio tenerli separati). Altra cosa importante è l'isolamento dell'involucro, verificane lo stato e coibenta dove serve, un buon isolamento ti permette di risparmiare energia. Altro elemento importante è la domotica per ottimizzare i consumi interni.

Io ho fatto montare un radiante a soffitto.
NicoF
Messaggi: 110
Iscritto il: dom feb 26, 2023 09:22

Re: Casa full elettrico

Messaggio da NicoF »

Esa ha scritto: mer dic 06, 2023 17:19 split + pannelli elettrici a pavimento,
Curiosità: come fai a far rientrare le verifiche di legge in riscaldamento, visto che immagino bagni e corridoi non avranno uno split dedicato, ma solo resistenza elettrica? Fai figurare il sistema ad espansione diretta come se a servizio dell'intero immobile?
Esa
Messaggi: 4776
Iscritto il: sab dic 03, 2011 22:53

Re: Casa full elettrico

Messaggio da Esa »

A Gravina l'impianto a pavimento è inutile, il tuo problema è il caldo.
D'estate certamente (per questo hai gli split).
In inverno, avere i pavimenti tiepidi, non guasta (in aggiunta agli split).
Curiosità: come fai a far rientrare le verifiche di legge in riscaldamento, visto che immagino bagni e corridoi non avranno uno split dedicato, ma solo resistenza elettrica? Fai figurare il sistema ad espansione diretta come se a servizio dell'intero immobile?
Non dell'intero immobile, ma di una quota. Normalmente bagni e corridoio rappresentano il 10% circa.
Come in tutti i sistemi che hanno le resistenze elettriche sui serbatoi (puffer).
Rientro comunque sempre nei parametri.
So di essere controtendenza, da tempo.
Come sul nucleare, del resto; ma dovete scusarmi, perché ci ho lavorato per anni e sono stato contaminato dall'impegno ed entusiasmo dei colleghi che avevo accanto.
Rispondi