TLR + PdC, possibile

Normativa Termotecnica, Impianti di riscaldamento, Legge 10/91, DLgs 192/05, ecc.

Moderatore: Edilclima

Rispondi
SuperP
Messaggi: 11914
Iscritto il: lun set 11, 2006 10:06

TLR + PdC, possibile

Messaggio da SuperP »

Ciao,
mi sto dilettando in una diagnosi energetica di un complesso condominiale che definire "bizzarro", architettonicamente, è riduttivo.
Stavo pensando a qualcosa sugli impianti. Ad oggi TLR per i radiatori e boiler elettrici nelle abitazioni.
Volevo abbinare, cambiando i terminali, una PDC al TLR andando poi a gestire, con qualche sorta di regolazione (sono in diagnosi, sto ipotizzando qualcosa che probabilmente mai si farà) l'avvio dell'una e dell'altro, dando priorità in funzione ad esempio dei costi dei vettori energetici, disponbilità di energia elettrica etc.
A me interessa ad ora la fattibilità dell'accoppiata dal punto di vista legislativo, dato che l'allaccio al TLR è obbligatorio se è presente. Questo però non penso presupponga la possibilità di integrazione anche con altre fonti di calore.
Cosa ne pensate?
Per_Corsi Passaggio da Caldaia a Pompa di Calore, Legge 10 - Requisiti Minimi, Termotecnica, VMC, Ponti termici, Tenuta all'ariahttps://www.paolosavoia.com/corso-online

Il blog delle curiosità https://www.paolosavoia.com/blog
Avatar utente
NoNickName
Messaggi: 10376
Iscritto il: gio giu 17, 2010 12:17

Re: TLR + PdC, possibile

Messaggio da NoNickName »

SuperP ha scritto: lun giu 19, 2023 11:11 Questo però non penso presupponga la possibilità di integrazione anche con altre fonti di calore.
Fattibile. Che temperature di TLR?
Il diritto pubblico fondato sulla uguaglianza [...]non riconosce la disuguaglianza di valore, di merito, di esperienza, cioè la fatica individuale: culminerà nel trionfo della feccia e dell'appiattimento.”
Henri Fréderic Amiel, 12 giugno 1871
SuperP
Messaggi: 11914
Iscritto il: lun set 11, 2006 10:06

Re: TLR + PdC, possibile

Messaggio da SuperP »

NoNickName ha scritto: lun giu 19, 2023 11:57
SuperP ha scritto: lun giu 19, 2023 11:11 Questo però non penso presupponga la possibilità di integrazione anche con altre fonti di calore.
Fattibile. Che temperature di TLR?
Alte, ma per "potenza". Se faccio un calcolo di tipo "energetico" posso abbassarlo.
Per_Corsi Passaggio da Caldaia a Pompa di Calore, Legge 10 - Requisiti Minimi, Termotecnica, VMC, Ponti termici, Tenuta all'ariahttps://www.paolosavoia.com/corso-online

Il blog delle curiosità https://www.paolosavoia.com/blog
arkanoid
Messaggi: 5138
Iscritto il: ven ago 31, 2007 08:51

Re: TLR + PdC, possibile

Messaggio da arkanoid »

Seguo. Boiler elettrici come fai con le rinnovabili? Puoi cassarle se usi il tele anche per il sanitario non tout court se c'è un allaccio tele
redigere redigere redigere
SuperP
Messaggi: 11914
Iscritto il: lun set 11, 2006 10:06

Re: TLR + PdC, possibile

Messaggio da SuperP »

arkanoid ha scritto: lun giu 19, 2023 12:25 Seguo. Boiler elettrici come fai con le rinnovabili? Puoi cassarle se usi il tele anche per il sanitario non tout court se c'è un allaccio tele
Sono esistenti.
Nella diagnosi probabilmente valuterò se sostituirli con altri in pdc... ma non è che siano passi da gigante.
Per_Corsi Passaggio da Caldaia a Pompa di Calore, Legge 10 - Requisiti Minimi, Termotecnica, VMC, Ponti termici, Tenuta all'ariahttps://www.paolosavoia.com/corso-online

Il blog delle curiosità https://www.paolosavoia.com/blog
Avatar utente
NoNickName
Messaggi: 10376
Iscritto il: gio giu 17, 2010 12:17

Re: TLR + PdC, possibile

Messaggio da NoNickName »

Verifico l'esistenza di schemi tipici già realizzati, e ti faccio sapere.
Il diritto pubblico fondato sulla uguaglianza [...]non riconosce la disuguaglianza di valore, di merito, di esperienza, cioè la fatica individuale: culminerà nel trionfo della feccia e dell'appiattimento.”
Henri Fréderic Amiel, 12 giugno 1871
boba74
Messaggi: 5271
Iscritto il: mar mag 26, 2020 15:16

Re: TLR + PdC, possibile

Messaggio da boba74 »

SuperP ha scritto: lun giu 19, 2023 11:11 dato che l'allaccio al TLR è obbligatorio se è presente. Questo però non penso presupponga la possibilità di integrazione anche con altre fonti di calore.
Cosa ne pensate?
Allaccio al TLR obbligatorio se presente? Ma in che pianeta? :roll:
Ronin
Messaggi: 7175
Iscritto il: sab giu 20, 2009 12:57

Re: TLR + PdC, possibile

Messaggio da Ronin »

SuperP ha scritto: lun giu 19, 2023 11:11 andando poi a gestire, con qualche sorta di regolazione (sono in diagnosi, sto ipotizzando qualcosa che probabilmente mai si farà) l'avvio dell'una e dell'altro
supponendo che l'esito di convenienza non sia scontato (siamo a brescia col tlr da rifiuti giusto? a gas metano è impossibile che la pdc non risulti conveniente), ti conviene attaccare la pdc in spillamento sul ritorno e programmarla per funzionare quando il COP supera un certo punto di convenienza, in questo modo il TLR agisce da compensatore di quel che manca e la pdc è sempre ottimizzata (perchè produce alla T più bassa possibile).
con TLR da metano invece la pdc va montata in parallelo (ovviamente a valle, ma tra mandata e ripresa), in modo che il TLR stia fermo salvo che la pdc sia guasta :lol:
se valuti di rifare i terminali e quindi operare a bassa temperatura, andrebbe valutata anche la possibilità di modificare il tipo di allaccio (quasi tutti i TLR offrono la possibilità di prelevare il calore dal ritorno con tariffa molto più bassa, invece che dalla mandata a tariffa "piena", ovviamente l'impianto deve essere compatibile, ma se lo rifai apposta...)
SuperP ha scritto: lun giu 19, 2023 11:11A me interessa ad ora la fattibilità dell'accoppiata dal punto di vista legislativo, dato che l'allaccio al TLR è obbligatorio se è presente.
pur non conoscendo quale sia il feud... la regione di riferimento, francamente non credo sia obbligatorio l'allaccio, soltanto la predisposizione allo stesso.
anche se potrebbero esserci obblighi contrattuali che l'utente ignaro ha sottoscritto quando ha firmato il contratto con il TLR
SuperP
Messaggi: 11914
Iscritto il: lun set 11, 2006 10:06

Re: TLR + PdC, possibile

Messaggio da SuperP »

boba74 ha scritto: lun giu 19, 2023 12:50
SuperP ha scritto: lun giu 19, 2023 11:11 dato che l'allaccio al TLR è obbligatorio se è presente. Questo però non penso presupponga la possibilità di integrazione anche con altre fonti di calore.
Cosa ne pensate?
Allaccio al TLR obbligatorio se presente? Ma in che pianeta? :roll:
Si si, pardon. E' lunedì mattina, ho 3 muratori, 1 elettricista ed 1 idraulico da seguire a casa mia e la testa che sta pensando ad altro. E' obbligatoria la predisposizione
Per_Corsi Passaggio da Caldaia a Pompa di Calore, Legge 10 - Requisiti Minimi, Termotecnica, VMC, Ponti termici, Tenuta all'ariahttps://www.paolosavoia.com/corso-online

Il blog delle curiosità https://www.paolosavoia.com/blog
SuperP
Messaggi: 11914
Iscritto il: lun set 11, 2006 10:06

Re: TLR + PdC, possibile

Messaggio da SuperP »

Ronin ha scritto: lun giu 19, 2023 13:45
SuperP ha scritto: lun giu 19, 2023 11:11 andando poi a gestire, con qualche sorta di regolazione (sono in diagnosi, sto ipotizzando qualcosa che probabilmente mai si farà) l'avvio dell'una e dell'altro
supponendo che l'esito di convenienza non sia scontato (siamo a brescia col tlr da rifiuti giusto? a gas metano è impossibile che la pdc non risulti conveniente), ti conviene attaccare la pdc in spillamento sul ritorno e programmarla per funzionare quando il COP supera un certo punto di convenienza, in questo modo il TLR agisce da compensatore di quel che manca e la pdc è sempre ottimizzata (perchè produce alla T più bassa possibile).
con TLR da metano invece la pdc va montata in parallelo (ovviamente a valle, ma tra mandata e ripresa), in modo che il TLR stia fermo salvo che la pdc sia guasta :lol:
se valuti di rifare i terminali e quindi operare a bassa temperatura, andrebbe valutata anche la possibilità di modificare il tipo di allaccio (quasi tutti i TLR offrono la possibilità di prelevare il calore dal ritorno con tariffa molto più bassa, invece che dalla mandata a tariffa "piena", ovviamente l'impianto deve essere compatibile, ma se lo rifai apposta...)
SuperP ha scritto: lun giu 19, 2023 11:11A me interessa ad ora la fattibilità dell'accoppiata dal punto di vista legislativo, dato che l'allaccio al TLR è obbligatorio se è presente.
pur non conoscendo quale sia il feud... la regione di riferimento, francamente non credo sia obbligatorio l'allaccio, soltanto la predisposizione allo stesso.
anche se potrebbero esserci obblighi contrattuali che l'utente ignaro ha sottoscritto quando ha firmato il contratto con il TLR
Grazie delle dritte. Qualcuna non l'ho capita, pazienza.
Sono a VR in questo caso
Per_Corsi Passaggio da Caldaia a Pompa di Calore, Legge 10 - Requisiti Minimi, Termotecnica, VMC, Ponti termici, Tenuta all'ariahttps://www.paolosavoia.com/corso-online

Il blog delle curiosità https://www.paolosavoia.com/blog
Avatar utente
NoNickName
Messaggi: 10376
Iscritto il: gio giu 17, 2010 12:17

Re: TLR + PdC, possibile

Messaggio da NoNickName »

SuperP ha scritto: lun giu 19, 2023 12:31 Sono esistenti.
Esempio n.1

Immagine

Partenza pompa 2.12 controllata da climatica. Si imposta max flow temp da PDC, se richiesta maggiore, si fa partire la seconda sorgente di calore.
Oppure se la T esterna è inferiore alla bivalente.
Il diritto pubblico fondato sulla uguaglianza [...]non riconosce la disuguaglianza di valore, di merito, di esperienza, cioè la fatica individuale: culminerà nel trionfo della feccia e dell'appiattimento.”
Henri Fréderic Amiel, 12 giugno 1871
Avatar utente
NoNickName
Messaggi: 10376
Iscritto il: gio giu 17, 2010 12:17

Re: TLR + PdC, possibile

Messaggio da NoNickName »

Esempio n.2

Immagine

Teleriscaldamento gestito come caldaia, a cui vengono collegati due circuiti ad alta e media temperatura, mentre un terzo a bassa temperatura è collegato alla pompa di calore, sulla terza via della miscelatrice (lo chiameremo circuito alla "Tom Bishop") a valle di un disconnettore idraulico (e prima che lo dica qualcuno, questo è il circuito a bassa temperatura, importa niente se c'è miscelazione nel pistolotto).
Non idoneo per acqua surriscaldata.
Se la pdc deve far fronte a tutti i carichi dei tre circuiti, si toglierà il disconnettore a destra, e si metterà uno scambiatore di calore a sinistra.
Il diritto pubblico fondato sulla uguaglianza [...]non riconosce la disuguaglianza di valore, di merito, di esperienza, cioè la fatica individuale: culminerà nel trionfo della feccia e dell'appiattimento.”
Henri Fréderic Amiel, 12 giugno 1871
Avatar utente
NoNickName
Messaggi: 10376
Iscritto il: gio giu 17, 2010 12:17

Re: TLR + PdC, possibile

Messaggio da NoNickName »

A livello di regolazione è possibile impostare la temperatura di bivalenza in corrispondenza del costo dell'energia elettrica a kWh pari al costo del kWh di teleriscaldamento.
Ad esempio: TLR 0.13€/kWh (Incluso oneri), EE 0.225€/kWh (incluso oneri) ----> Temperatura bivalente è quella alla quale la PDC ha un COP istantaneo di 1.73 o inferiore e cioè MAI.
Il diritto pubblico fondato sulla uguaglianza [...]non riconosce la disuguaglianza di valore, di merito, di esperienza, cioè la fatica individuale: culminerà nel trionfo della feccia e dell'appiattimento.”
Henri Fréderic Amiel, 12 giugno 1871
SuperP
Messaggi: 11914
Iscritto il: lun set 11, 2006 10:06

Re: TLR + PdC, possibile

Messaggio da SuperP »

NoNickName ha scritto: mar giu 20, 2023 16:01 A livello di regolazione è possibile impostare la temperatura di bivalenza in corrispondenza del costo dell'energia elettrica a kWh pari al costo del kWh di teleriscaldamento.
Ad esempio: TLR 0.13€/kWh (Incluso oneri), EE 0.225€/kWh (incluso oneri) ----> Temperatura bivalente è quella alla quale la PDC ha un COP istantaneo di 1.73 o inferiore e cioè MAI.
Grazie del contributo!
Per_Corsi Passaggio da Caldaia a Pompa di Calore, Legge 10 - Requisiti Minimi, Termotecnica, VMC, Ponti termici, Tenuta all'ariahttps://www.paolosavoia.com/corso-online

Il blog delle curiosità https://www.paolosavoia.com/blog
Esa
Messaggi: 4776
Iscritto il: sab dic 03, 2011 22:53

Re: TLR + PdC, possibile

Messaggio da Esa »

Meno male che hanno inventato i puffer
SuperP
Messaggi: 11914
Iscritto il: lun set 11, 2006 10:06

Re: TLR + PdC, possibile

Messaggio da SuperP »

Riapro il post

E' detraibile in EcoBonus? Ho chiesto ad ENEA, vi aggiorno.
Intanto ditemi la vostra

Buongiorno, sto valutando per un condominio di unica proprietà dotato di impianto centralizzato a colonne montanti e radiatori ed alimentato da teleriscaldamento di installare delle pompe di calore per la copertura di buona parte dei fabbisogni di riscaldamento. Tuttavia risulta antieconmico installare solo pompe di calore e volevo mantenere l'impianto esistente, il teleriscaldamento, e destinarlo tramite una regolazione particolare ad integrazione termica durante i picchi di richiesta energetica o i picchi di fabbisogno, per ridotte temperature esterne ad esempio.
E' incentivabile in Ecobonus l'installazione di una o più pompa di calore in un impianto dotato di teleriscaldamento e dove la progettazione prevede una pompa di calore che non copre totalmente il carico termico ed il teleriscaldamento sarebbe destinato a coprire le integrazioni ed i picchi di energia? Non vorrei dismettere l'impianto termico per prevedere un impianto ibrido, con inutile caldaia a condensazione ed una pompa di calore sottodimensionata per rimanere nel rapporto del % tra le due potenze.
Per_Corsi Passaggio da Caldaia a Pompa di Calore, Legge 10 - Requisiti Minimi, Termotecnica, VMC, Ponti termici, Tenuta all'ariahttps://www.paolosavoia.com/corso-online

Il blog delle curiosità https://www.paolosavoia.com/blog
girondone
Messaggi: 13421
Iscritto il: ven mar 16, 2007 09:48
Località: SV

Re: TLR + PdC, possibile

Messaggio da girondone »

SuperP ha scritto: mer ago 02, 2023 13:13 Riapro il post

E' detraibile in EcoBonus? Ho chiesto ad ENEA, vi aggiorno.
Intanto ditemi la vostra

Buongiorno, sto valutando per un condominio di unica proprietà dotato di impianto centralizzato a colonne montanti e radiatori ed alimentato da teleriscaldamento di installare delle pompe di calore per la copertura di buona parte dei fabbisogni di riscaldamento. Tuttavia risulta antieconmico installare solo pompe di calore e volevo mantenere l'impianto esistente, il teleriscaldamento, e destinarlo tramite una regolazione particolare ad integrazione termica durante i picchi di richiesta energetica o i picchi di fabbisogno, per ridotte temperature esterne ad esempio.
E' incentivabile in Ecobonus l'installazione di una o più pompa di calore in un impianto dotato di teleriscaldamento e dove la progettazione prevede una pompa di calore che non copre totalmente il carico termico ed il teleriscaldamento sarebbe destinato a coprire le integrazioni ed i picchi di energia? Non vorrei dismettere l'impianto termico per prevedere un impianto ibrido, con inutile caldaia a condensazione ed una pompa di calore sottodimensionata per rimanere nel rapporto del % tra le due potenze.

no ecobonus
si bonuscasa
SuperP
Messaggi: 11914
Iscritto il: lun set 11, 2006 10:06

Re: TLR + PdC, possibile

Messaggio da SuperP »

girondone ha scritto: mer ago 02, 2023 15:29 no ecobonus
Perchè no ecobonus?
Hai qualcosa di concreto?

Se fosse così stanno facendo una cavolata pazzesca. L'alternativa sarebbe quella di mettere un ibrido con fiamma dove la fiamma deve avere almeno il doppio di potenza della pompa di calore.

Alla faccia della decarbonizzazione!

DM requisiti ecobonus
Art. 2
Tipologia e caratteristiche degli interventi
1. Ai fini del presente decreto e' identificata la seguente tipologia di interventi:
e) interventi riguardanti gli impianti di climatizzazione invernale e produzione di acqua calda sanitaria di cui all'art. 1, comma 347, della legge 27 dicembre 2006, n. 296 e di cui alle lettere b) e c) dell'art. 119 del Decreto Rilancio. Tali interventi possono riguardare:
v. la sostituzione, integrale o parziale, di impianti di climatizzazione invernale con impianti dotati di pompe di calore ad
alta efficienza, anche con sistemi geotermici a bassa entalpia, destinati alla climatizzazione invernale con o senza produzione di
acqua calda sanitaria e alla climatizzazione estiva se reversibili, aventi i requisiti di cui all'allegato F;

ALLEGATO A
Requisiti da indicare nell’asseverazione per gli interventi che accedono alle detrazioni fiscali

Ai sensi dell’articolo 8, al fine di accedere alle detrazioni, gli interventi di cui all’articolo 2 sono asseverati da un tecnico abilitato, che attesti la rispondenza dell’intervento ai pertinenti requisiti richiesti nei casi e nelle modalità previste dal presente decreto, e in particolare secondo quanto
riportato al presente allegato.
5 Interventi di sostituzione di impianti di climatizzazione invernale con impianti dotati di
pompe di calore ad alto rendimento anche con sistemi geotermici a bassa entalpia

5.1 Per gli interventi di sostituzione di impianti di climatizzazione invernale con impianti dotati di pompe di calore ad alta efficienza anche con sistemi geotermici a bassa entalpia di cui all’articolo 2, comma 1, lettera e), punti v e vi, è prodotta l’asseverazione redatta da un tecnico abilitato, o idonea documentazione prodotta dal fornitore degli apparecchi, attestante che:
a) sono installate pompe di calore che hanno un coefficiente di prestazione (COP/GUEh – e se del caso, per le pompe di calore reversibili, EER/GUEc) almeno pari ai pertinenti valori minimi, fissati nella tabella 3 e 4 dell’allegato F al presente decreto. Qualora siano installate pompe di calore elettriche dotate di variatore di velocità (inverter), i pertinenti valori di cui all’allegato F sono ridotti del 5%;
b) per impianti di potenza termica utile complessiva superiore a 100 kW dichiarata dal fornitore nelle condizioni di temperatura cui all’allegato F, che il sistema di distribuzione, è messo a punto ed equilibrato in relazione alle portate.



Mi giocherei tutto su quel "parziale".
Per_Corsi Passaggio da Caldaia a Pompa di Calore, Legge 10 - Requisiti Minimi, Termotecnica, VMC, Ponti termici, Tenuta all'ariahttps://www.paolosavoia.com/corso-online

Il blog delle curiosità https://www.paolosavoia.com/blog
Ronin
Messaggi: 7175
Iscritto il: sab giu 20, 2009 12:57

Re: TLR + PdC, possibile

Messaggio da Ronin »

anche secondo me no ecobonus. sostituzione parziale = dismetto un solo generatore di più di uno che ce ne erano. qui non dismetti niente.
ma poi, il 15% di detrazione in meno (1,5% all'anno) trasforma un intervento remunerativo in una "cavolata pazzesca"?
SuperP
Messaggi: 11914
Iscritto il: lun set 11, 2006 10:06

Re: TLR + PdC, possibile

Messaggio da SuperP »

Ronin ha scritto: mer ago 02, 2023 17:49 sostituzione parziale = dismetto un solo generatore di più di uno che ce ne erano. qui non dismetti niente.
Definizione presa da?
Ronin ha scritto: mer ago 02, 2023 17:49 il 15% di detrazione in meno (1,5% all'anno) trasforma un intervento remunerativo in una "cavolata pazzesca"?
Nel mio caso il proprietario del condominio è un ente che NON può usufruire di BonusCasa stando alle indicazioni del loro consulente essendo enti privati che non svolgono attività commerciale
Per_Corsi Passaggio da Caldaia a Pompa di Calore, Legge 10 - Requisiti Minimi, Termotecnica, VMC, Ponti termici, Tenuta all'ariahttps://www.paolosavoia.com/corso-online

Il blog delle curiosità https://www.paolosavoia.com/blog
Ronin
Messaggi: 7175
Iscritto il: sab giu 20, 2009 12:57

Re: TLR + PdC, possibile

Messaggio da Ronin »

SuperP ha scritto: mer ago 02, 2023 18:15 Definizione presa da?
zanichelli? :lol:
scherzi a parte, quella che vuoi applicare tu nelle faq enea è definita sostituzione funzionale (si applica ad es. nel caso del cogeneratore, dove si riconosce che per il modo come funziona la macchina non la si può usare per coprire il carico di picco, quindi la caldaia deve restare).
quindi quella parziale è un'altra cosa (sennò enea la chiamerebbe così anche quella).
arkanoid
Messaggi: 5138
Iscritto il: ven ago 31, 2007 08:51

Re: TLR + PdC, possibile

Messaggio da arkanoid »

Riprendo il post iniziale perchè ci stiamo sbattendo la testa anche noi.
Ammesso e non concesso che il TLR sia efficiente (siamo in attesa di una risposta dal gestore), il 199 consente di non applicare il comma 1, art.2 all.3 (quote rinnovabili) a patto che il TLR copra l'intero fabbisogno per riscaldamento e/o raffrescamento (comma 4, art.2, all.3). Non fa menzione dell'ACS.
Secondo la mia software house, ma di questo gli chiedo verifica, se l'ACS viene prodotta con altri sistemi, decade il requisito per non applicare il comma 1: o hai solo il TLR o devi verificare tutte le quote rinnovabili.
Tralasciando questo aspetto che secondo me si sono bevuti (in presenza di TLR l'ACS puoi farla anche a carbone), effettivamente mi chiedo come si possa "dimostrare" che eventuali generatori ausiliari siano esclusivamente di backup e non di intergrazione.
E' comunque necessario che il TLR copra l'INTERO FABBISOGNO DI ENERGIA.
Nel nostro caso una struttura sanitaria di 5000 mq, se allacciata a TLR efficiente, consente di non investire nulla in rinnovabili cioè un bel risparmio iniziale. Nel momento in cui gli eventuali generatori di backup (fossero anche pompe di calore e non caldaie) consentissero un risparmio operativo, dubito che non verranno usate. Se ciò accadesse, si sarebbe commesso un illecito.
redigere redigere redigere
SuperP
Messaggi: 11914
Iscritto il: lun set 11, 2006 10:06

Re: TLR + PdC, possibile

Messaggio da SuperP »

arkanoid ha scritto: gio ago 03, 2023 08:39 Nel nostro caso una struttura sanitaria di 5000 mq, se allacciata a TLR efficiente, consente di non investire nulla in rinnovabili cioè un bel risparmio iniziale. Nel momento in cui gli eventuali generatori di backup (fossero anche pompe di calore e non caldaie) consentissero un risparmio operativo, dubito che non verranno usate. Se ciò accadesse, si sarebbe commesso un illecito.
Tu sei nel nuovo. Io mi immagino le decine/centinaia di migliaia di condomini allacciati al TLR che subiscono, almeno nella mia zona, la presenza di un solo operatore, il "proprietario del TLR" per la fornitura. Un monopolio che dati alla mano, ha una differenza MINIMA nelle ultime tre stagioni rispetto al gas di 30%.

Ora, secondo me se tu metti un TLR che copre tutto e poi metti dei generatori di backup ed in fase di esercizio switchi da uno all'altro per questioni economiche (nel mio caso il COP di pareggio tra pdc e TLR è 1.5 porca vacca) tu non commetti illeciti di alcun tipo e nemmeno il gestore.

Le norme a cui fai riferimento sono di progettazione. Sulla gestione nulla c'è.

NOTA a margine: con la pdc ed un po' di FV copri alla grande i limiti dell'allegato 3 e non dirmi che la ditta non fa FV a tetto.
Per_Corsi Passaggio da Caldaia a Pompa di Calore, Legge 10 - Requisiti Minimi, Termotecnica, VMC, Ponti termici, Tenuta all'ariahttps://www.paolosavoia.com/corso-online

Il blog delle curiosità https://www.paolosavoia.com/blog
Esa
Messaggi: 4776
Iscritto il: sab dic 03, 2011 22:53

Re: TLR + PdC, possibile

Messaggio da Esa »

si sarebbe commesso un illecito.
Civile o penale? Chi potrebbe denunciare l'illecito?

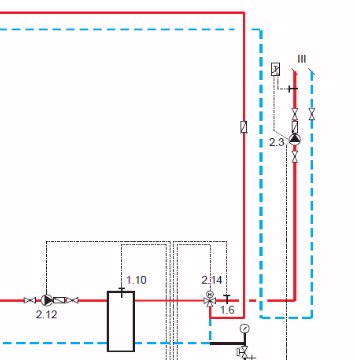
Non ho capito il funzionamento della miscelatrice a destra; come circola l'acqua nel tratto azzurro (ritorno compensatore)?
TLR e PdC.jpg
TLR e PdC.jpg (19.04 KiB) Visto 5263 volte

In una situazione analoga (400 kW), abbiamo fatto un calcolo di convenienza.
Impianto a radiatori.
Installate PdC da 200 kW che funzionano quando "conviene": un PLC gestisce tutto.
L'utente, dopo una stagione (certamente favorevole) è soddisfatto.
Esa
Messaggi: 4776
Iscritto il: sab dic 03, 2011 22:53

Re: TLR + PdC, possibile

Messaggio da Esa »

OK, credo di aver capito. La pompa 23 fa circolare l'acqua nelle due vie della miscelatrice.
Ronin
Messaggi: 7175
Iscritto il: sab giu 20, 2009 12:57

Re: TLR + PdC, possibile

Messaggio da Ronin »

SuperP ha scritto: gio ago 03, 2023 09:52 Un monopolio che dati alla mano, ha una differenza MINIMA nelle ultime tre stagioni rispetto al gas di 30%.
se ci metti ammortamento e manutenzione dell'impianto (che nel TLR non devi fare) sei più o meno allineato.
lo calcolano apposta, il costo, perchè più o meno venga così.
SuperP ha scritto: gio ago 03, 2023 09:52 in fase di esercizio switchi da uno all'altro per questioni economiche (nel mio caso il COP di pareggio tra pdc e TLR è 1.5 porca vacca) tu non commetti illeciti di alcun tipo e nemmeno il gestore.
sono d'accordo, salvo che ci sia scritto qualcosa di diverso nel contratto (ad es. in determinati casi potrebbe esserci nel contratto che hai firmato che ti impegni a non utilizzare altri generatori: lo dico perchè contratti così li ho visti; in tal caso è una violazione del contratto e possono chiederti i danni e il mancato lucro).
SuperP ha scritto: gio ago 03, 2023 09:52NOTA a margine: con la pdc ed un po' di FV copri alla grande i limiti dell'allegato 3 e non dirmi che la ditta non fa FV a tetto.
d'accordo anche qui: una scappatoia legislativa che ti consente di NON fare l'investimento più conveniente che trovi sul mercato, basta che ti allacci alla fonte più costosa di tutte :roll:
SuperP
Messaggi: 11914
Iscritto il: lun set 11, 2006 10:06

Re: TLR + PdC, possibile

Messaggio da SuperP »

Ronin ha scritto: gio ago 03, 2023 10:39 se ci metti ammortamento e manutenzione dell'impianto (che nel TLR non devi fare) sei più o meno allineato.
lo calcolano apposta, il costo, perchè più o meno venga così.
Che di devo dire. Ho fatto giorni di confronti e calcoli economici. Nel mio caso non è per nulla così
Non solo in termini puntuali ma anche come variazione dei costi nelle ultime stagioni tra TLR e GAS tiene.

Passando da TLR a caldaia a gas, due murali da 100kW in cascata, mettici dentro tutto, il tempo di ritorno finanziario è meno di 3 anni, EcoBonus compreso.

Purtroppo c'è il monopolio ed il prezzo non lo discuti e non puoi guardarti in giro se altri fanno meno. Tanto il calore è quello, non è che uno ti vende un calore migliore.
Per_Corsi Passaggio da Caldaia a Pompa di Calore, Legge 10 - Requisiti Minimi, Termotecnica, VMC, Ponti termici, Tenuta all'ariahttps://www.paolosavoia.com/corso-online

Il blog delle curiosità https://www.paolosavoia.com/blog
Ronin
Messaggi: 7175
Iscritto il: sab giu 20, 2009 12:57

Re: TLR + PdC, possibile

Messaggio da Ronin »

SuperP ha scritto: gio ago 03, 2023 12:01 Passando da TLR a caldaia a gas, due murali da 100kW in cascata, mettici dentro tutto, il tempo di ritorno finanziario è meno di 3 anni, EcoBonus compreso.
ecobonus compreso il PBT è certamente molto di più, perchè quello ti dà 6,5% all'anno, mica 65% tutto insieme al primo giorno
Avatar utente
NoNickName
Messaggi: 10376
Iscritto il: gio giu 17, 2010 12:17

Re: TLR + PdC, possibile

Messaggio da NoNickName »

arkanoid ha scritto: gio ago 03, 2023 08:39 E' comunque necessario che il TLR copra l'INTERO FABBISOGNO DI ENERGIA.
Il TLR ti permette certamente di coprire il fabbisogno di energia, ma non quello istantaneo di potenza.
E' arcinoto che gli enti distributori vendono molta più potenza impegnata di quella disponibile, e parzializzano le miscelatrici da remoto.
E' lì dove i backup entrano in gioco: alle 7 del mattino.
Il diritto pubblico fondato sulla uguaglianza [...]non riconosce la disuguaglianza di valore, di merito, di esperienza, cioè la fatica individuale: culminerà nel trionfo della feccia e dell'appiattimento.”
Henri Fréderic Amiel, 12 giugno 1871
Ronin
Messaggi: 7175
Iscritto il: sab giu 20, 2009 12:57

Re: TLR + PdC, possibile

Messaggio da Ronin »

quello di cui parla arkanoid cmq è il fabbisogno mensile da calcolo energetico (legge 10), non quello reale
arkanoid
Messaggi: 5138
Iscritto il: ven ago 31, 2007 08:51

Re: TLR + PdC, possibile

Messaggio da arkanoid »

SuperP ha scritto: gio ago 03, 2023 09:52 NOTA a margine: con la pdc ed un po' di FV copri alla grande i limiti dell'allegato 3 e non dirmi che la ditta non fa FV a tetto.
E' un edifico ospedaliero, rientrare nei limiti non è affatto immediato.
redigere redigere redigere
arkanoid
Messaggi: 5138
Iscritto il: ven ago 31, 2007 08:51

Re: TLR + PdC, possibile

Messaggio da arkanoid »

NoNickName ha scritto: gio ago 03, 2023 12:32 Il TLR ti permette certamente di coprire il fabbisogno di energia, ma non quello istantaneo di potenza.
La legge richiede che tutta l'energia sia fornita dal teleriscamento. Per chi chiedeva dove fosse l'illecito: progetto sulla base del fatto che il 100% dell'energia sarà fornito da TLR, ma poi non è vero. Mi consenti di risparmiare qualche centinaio di migliaia di euro.
redigere redigere redigere
SuperP
Messaggi: 11914
Iscritto il: lun set 11, 2006 10:06

Re: TLR + PdC, possibile

Messaggio da SuperP »

Ronin ha scritto: gio ago 03, 2023 12:19 ecobonus compreso il PBT è certamente molto di più, perchè quello ti dà 6,5% all'anno, mica 65% tutto insieme al primo giorno
Costo TLR Costo Gas (se avessero avuto quello)
Stagione 2020/21 27200 13500
Stagione 2021/22 40000 33200
Stagione 2022/23 22800 33000

Costo stimato rifacimento impianto 35000€

Nota: costi (in €/kWh) medi vettori energetici (TLR da bolletta, Gas da Arera con aggiunta di fissi, manutezione e ricarica 25% distributore)
Costo TLR Costo Gas (se avessero avuto quello)
Stagione 2020/21 0.105 0.052
Stagione 2021/22 0.191 0.128
Stagione 2022/23 0.202 0.140
Per_Corsi Passaggio da Caldaia a Pompa di Calore, Legge 10 - Requisiti Minimi, Termotecnica, VMC, Ponti termici, Tenuta all'ariahttps://www.paolosavoia.com/corso-online

Il blog delle curiosità https://www.paolosavoia.com/blog
SuperP
Messaggi: 11914
Iscritto il: lun set 11, 2006 10:06

Re: TLR + PdC, possibile

Messaggio da SuperP »

No ecobonus se non sostituisco integralmente, quindi mi stacco completamente dal TLR.

Ora come dice boba74 qui viewtopic.php?p=242449#p242449 l'ecobonus è possibile se dimostro un risparmio energetico (la cosa mi era sfuggita :( ) ma per fortuna da me il TLR andando a gas metano ha fP,nren 1,065 fP,ren 0,051

Da UNI TS il gas Gas naturale ha fp,nren 1,05 e fp,ren 0 . Andando a condensare bene ed alzando i rendimenti dell'impianto e peggiorando quelli del TLR (l'isolamento degli scambiatori...) potrei anche avere un risparmio di energia primaria non rinnovabile di pochi kWh.

Nel caso installassi (senza senso) solo pompe di calore non ci sarebbero difficoltà.
Per_Corsi Passaggio da Caldaia a Pompa di Calore, Legge 10 - Requisiti Minimi, Termotecnica, VMC, Ponti termici, Tenuta all'ariahttps://www.paolosavoia.com/corso-online

Il blog delle curiosità https://www.paolosavoia.com/blog
Avatar utente
NoNickName
Messaggi: 10376
Iscritto il: gio giu 17, 2010 12:17

Re: TLR + PdC, possibile

Messaggio da NoNickName »

arkanoid ha scritto: gio ago 03, 2023 15:38
NoNickName ha scritto: gio ago 03, 2023 12:32 Il TLR ti permette certamente di coprire il fabbisogno di energia, ma non quello istantaneo di potenza.
La legge richiede che tutta l'energia sia fornita dal teleriscamento.
Eh, sì, ma nelle ore che ti serve... soprattutto quelle di punta.
Il diritto pubblico fondato sulla uguaglianza [...]non riconosce la disuguaglianza di valore, di merito, di esperienza, cioè la fatica individuale: culminerà nel trionfo della feccia e dell'appiattimento.”
Henri Fréderic Amiel, 12 giugno 1871
arkanoid
Messaggi: 5138
Iscritto il: ven ago 31, 2007 08:51

Re: TLR + PdC, possibile

Messaggio da arkanoid »

perdonami ma non ti seguo. Il teleriscaldamento deve fornire tutta l'energia richiesta dal fabbricato.
redigere redigere redigere
Avatar utente
NoNickName
Messaggi: 10376
Iscritto il: gio giu 17, 2010 12:17

Re: TLR + PdC, possibile

Messaggio da NoNickName »

arkanoid ha scritto: gio ago 03, 2023 19:56 perdonami ma non ti seguo. Il teleriscaldamento deve fornire tutta l'energia richiesta dal fabbricato.
Ripeto ancora una volta: leggi bene.
Il TLR ti permette certamente di coprire il fabbisogno di energia, ma non quello istantaneo di potenza.
E' arcinoto che gli enti distributori vendono molta più potenza impegnata di quella disponibile, e parzializzano le miscelatrici da remoto.
E' lì dove i backup entrano in gioco: alle 7 del mattino.

POTENZA!
Energia ne hanno da buttare. E' la potenza che manca.
Il diritto pubblico fondato sulla uguaglianza [...]non riconosce la disuguaglianza di valore, di merito, di esperienza, cioè la fatica individuale: culminerà nel trionfo della feccia e dell'appiattimento.”
Henri Fréderic Amiel, 12 giugno 1871
arkanoid
Messaggi: 5138
Iscritto il: ven ago 31, 2007 08:51

Re: TLR + PdC, possibile

Messaggio da arkanoid »

Perdonami di nuovo: NON PUOI utilizzare altri generatori, non interessa il gestore del tele cosa possa fare. Tutta l'energia termica deve essere fornita dal tele per il tuo fabbricato. Se non è così, devi progettare l'impianto per coprire le quote di energia rinnovabile.
redigere redigere redigere
Rispondi