consiglio per centralina 2 caldaie cascata

Normativa Termotecnica, Impianti di riscaldamento, Legge 10/91, DLgs 192/05, ecc.

Moderatore: Edilclima

Rispondi
sailorman71
Messaggi: 1
Iscritto il: mar ott 17, 2023 22:28

consiglio per centralina 2 caldaie cascata

Messaggio da sailorman71 »

Salve,

per una associazione abbiamo installato (riprogettando con nuove pratiche ovviamente) una centrale proveniente da un altro immobile. Il supporto del vecchio manutentore langue..

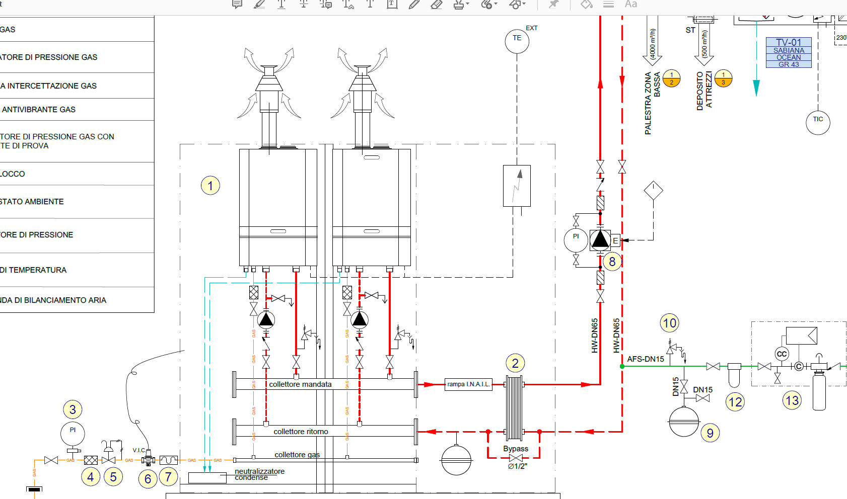
Lo schema è come da allegato. Le caldaie funzionano bene e il box che contiene caldaie, pompe e scambiatore è cablato verso una centralina siemens RVS63.283. Ho tribolato per mettere in funzione uno o entrambe i generatori ma la richiesta non arriva dal bus open-therm; il display delle caldaie dice: no richiesta calore esterno. Led centralina verde quindi "idle".
Penso che la centralina sia un po vecchia e i paramentri utilizzatore molto miseri. A parte barare sul programma, raffreddare sonde non si può fare molto.
Piuttosto che investire in costose diagnosi pensavo di cambiare verso modelli piu moderni, ho visto, con l'aiuto di questo forum il PM2975 (noto come TEM), un altro usato da immergas (forse theta?) e l' ecoMAX 850i della plum per il quale chiederò informazioni al distributore in quanto non trovo descrizioni dettagliate e schemi. Non volevo superare i 500 euro.

Ora ho scollegato opentherm e uso una caldaia con ingresso termostato 220V ma è un setup provvisorio.

Cordialità a tutti e grazie per la vs esperienza
Allegati
schema centrale.jpg
schema centrale.jpg (306.03 KiB) Visto 743 volte
Rispondi